
DESCRIPTION
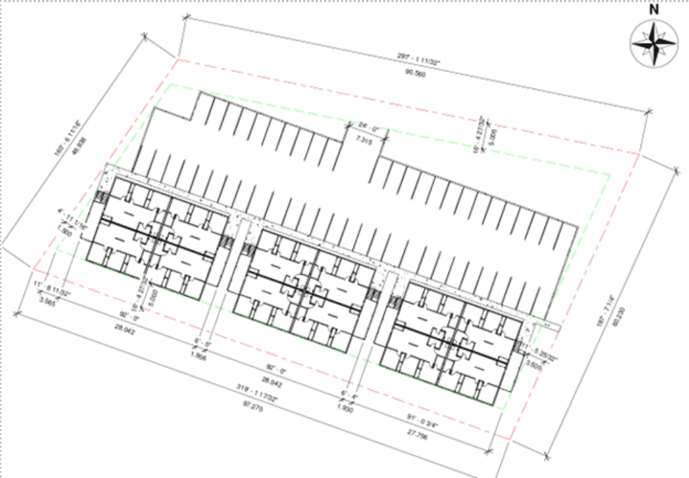
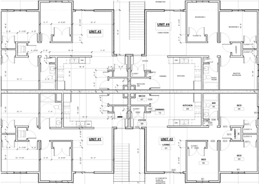
The expansion will include (3) new 8 plex units. One of the three 8 plex units would be on grade and have 4 barrier free units. Each unit has 3 bedrooms, large kitchen with pantry, bathroom, private entry, laundry and living area. Individual units will be designed to be approximately 1288 sq ft. We have completed a detailed Project Business Plan (Colliers Project Leaders). Applied for seed funding from Federation of Canadian Municipalities (FCM) to support the cost of our Business Plan development (supported by the City of Brooks). We have selected Jayco Builders to engage in unit design and providing a Class B estimate (as required by the provincial Affordable Housing Partnership Program). Currently seeking a Civil Engineering firm for the development of the site infrastructure plan. Municipal building permit for construction approved. Preparations are being made for meetings with our financial institution for a pre-approved mortgage. Application has been submitted (October 2025) for Brooks Housing Society for non-profit Charity status.
DETAILS
Affordability Framework
100% Affordable Rent
Target Completion Date
Populations Served
Individuals and Families
Total Project Cost
7000000
Total Units
24
Affordable Units
24
Populations Served - Notes
Seniors, Newcomers, Individuals and Families Fleeing Domestic Violence
Project Funding
Funding Required
Building expansion cost summary of funding:
Owner’s Equity contribution: $700,000
Equity Partner(s) contribution: $1,060,000
1/3 AAHPP Grant Funding: $2,040,000
CMHC Seed Grant Funding: $200,000
Mortgage (Financial Inst.) and CMHC loan: $3,000,000
Total: $7.000,000
The Brooks Housing Society financial business plan for the building expansion will be dependent on accessing funding through the Province of Alberta Affordable Housing Partnership Program (AAHPP). This grant program can provide up to 1/3 of a benchmark cost of $255,000 per unit (for a total of $2,040,000). However to qualify for this funding program, applicants must demonstrate financial viability and stability and have support from other sources.
10% (min) Owners Equity Contribution – Funding in place.
See below for breakdown of sources contributing to this total:
5% (min) Equity Partner(s) Contribution – The current ‘target ask’ is for $1,060,000
- This amount will reduce the burden on the ongoing capital reserve fund of the Brooks Housing Society, to ensure ongoing viability.
- The ‘official’ commitment for this funding must be in place by October 1, 2027, to meet the anticipated AAHPP funding envelope application announcement by the Province of Alberta.
Additionally, the Brooks Housing Society will be seeking a CMHC Seed Funding grant of $200,000 and obtaining mortgage / loan funding through a private financial institution and CMHC in the amount of $3,000,000.
Funds Raised
5% Owners Equity ($700,000 secured):
- Land donation* (market value) = $$270,000
* Donated by City of Brooks. Brooks Housing Society holds title to the land upon which the new construction will be built.
- Capital reserve funds = $300,000
- Planning and other preliminary expenditures (site survey, geotechnical site survey, business plan development = $113,910.50 (difference between $ paid to Colliers (242,410.50) minus settlement grant received from FCM (128,500)
TOTAL = $683,910.50
Use of funds
Funds received will contribute to Equity Partner's Contribution
MAP






